
- 変形地・狭小地の有効活用、悩んでいませんか?
- 変形地・狭小地の固定資産税、困っていませんか?
- 変形地・狭小地の注文建築、諦めていませんか?
土地には様々な大きさがあり、形があります。
まず同じ土地というのはありません!
変形地・狭小地を得意とする建設会社はあまり多くありません。
その理由として以下の様なことがあります。
- 設計が難しい。一棟一棟異なる。
- パッケージ住宅では入らない。
- 原価を下げることが難しい。
- あまり利益が出ない、儲からない。
- 下請け、職人が慣れていない、嫌がる。
- デザイン性が良くない。格好悪い。
- 大量仕入、大量生産が効かない。
- ローコストで出来ない。ロスが多い。etc...
土地だけを見てしまうと、本当に建物が建つのか不安ですよね!
まずは、私共の変形地・狭小地の施工実績をご覧下さい。
変形・狭小地の施工実績
以下の施工実績は、ほんの一例です。私共はどんな土地でも建設することが可能です。
一戸建賃貸
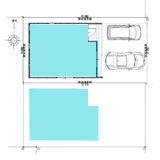
- 前橋市文京町/土地面積:25.56坪
- 高崎市井野町/土地面積:26.45坪
- 前橋市国領町/土地面積:31.75坪
- 太田市藤久良町/土地面積:31.07坪
- 伊勢崎市宗高町/土地面積:24.64坪
- 前橋市千代田町/土地面積:26.44坪
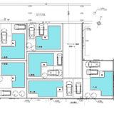
地形・区割り図
完成予想パース図
完成写真
地形・区割り図
完成予想パース図
完成写真
地形・区割り図
完成予想パース図
完成写真
地形・区割り図
完成予想パース図
完成写真
地形・区割り図
完成予想パース図
完成写真
地形・区割り図
完成予想パース図
完成写真
有効活用
- 前橋市石倉町/土地面積:31.62坪~33.45坪/各 A~F全6棟
- 大泉町富士/土地面積:35.33坪~35.61坪/各 A~C全3棟
- 高崎市天神町/土地面積:26.23坪・26.24坪/各 A・B全2棟
- 前橋市南町/土地面積:25.41坪・25.40坪/各 A・B全2棟
- 前橋市下小出町/土地面積:26.10坪~33.14坪/各 A~F全6棟
地形・区割り図
完成予想パース図
完成写真
地形・区割り図
完成予想パース図
完成写真
地形・区割り図
完成予想パース図
完成写真
地形・区割り図
完成予想パース図
完成写真
地形・区割り図
完成予想パース図
完成写真
土地が20坪以下の場合であれば、モチロン木造3階建てもOKです。
大きな家を作るのは得意でも、小さな家を作るのは実は大変難しいことなのです。
逆に、小さな家を作るのは得意な会社は、大きな家を作るのも上手なのです。
